Collective Dwelling & Appropriation for Autonomy
April 2022
This is an investigation of the unoccupied space in the BMO tower, 100 King St. west, speculating on what possibilities might exist there for collective dwelling and robust community outside of the confines of capitalist conceptions of property and state sanctioned development.
The central goal of autonomous housing outside of state and capitalist property conceptions is rooted in the idea that housing is a fundamental right of human beings, and that the commodification of housing under capitalism has led to the use-value of housing to be superseded by it’s exchange value as real-estate (1).
The practice of squatting (the illegal occupation of a building) has set a precedent as a viable option for much needed housing and community space, and is a mode of reclaiming the use-value over exchange value. In my research, I examined the processes of European squatting that have taken place in London, Amsterdam, Copenhagen, Berlin, in the mid to late 20th century, as well examples of informal housing in Caracas (2)(3) . From this I have gathered that the act of squatting is simultaneously an act of rebellion and revolutionary activism as well as a means to procure humane housing and collective space. This project will utilize squatting as a medium to gain access to the tower and appropriate un-used office space with the eventual goal of permanent dwelling space and communal living.
References
(1) David J. Madden and Peter Marcuse. “Introduction: The Residential Is Political.” In Defense of Housing: The Politics of Crisis, Verso, 2016, pp. 9–12.
(2) Justin McGuirk. “Caracas: The City Is Frozen Politics.” Radical Cities: Across Latin America in Search of a New Architecture, Verso, 2014, pp. 105–107.
(3) Alexander Vasudevan . The Autonomous City: A History of Urban Squatting, Verso, New York, 2017.
BMO Tower site
Siege Tools: images of tools to be used for occupying and building within the tower.
The drawing above shows a breakdown of the available office space for rent in 100 King St. as of December 2021. This office space is what I am investigating for occupation.
The drawing above illustrates a concept of parasitic expansion, moving through the floors of the building, slowly taking control and establishing community.
The sequence on the left is a preliminary exploration of the process of an autonomous occupation, which in its essence a coordinated and planned squat.
This drawing is an exploration of the what it might mean to bring construction tools into the tower in an insurgent nature. The box appears to just be a large wooden crate, but once deployed it turns into a functional mitre saw table.
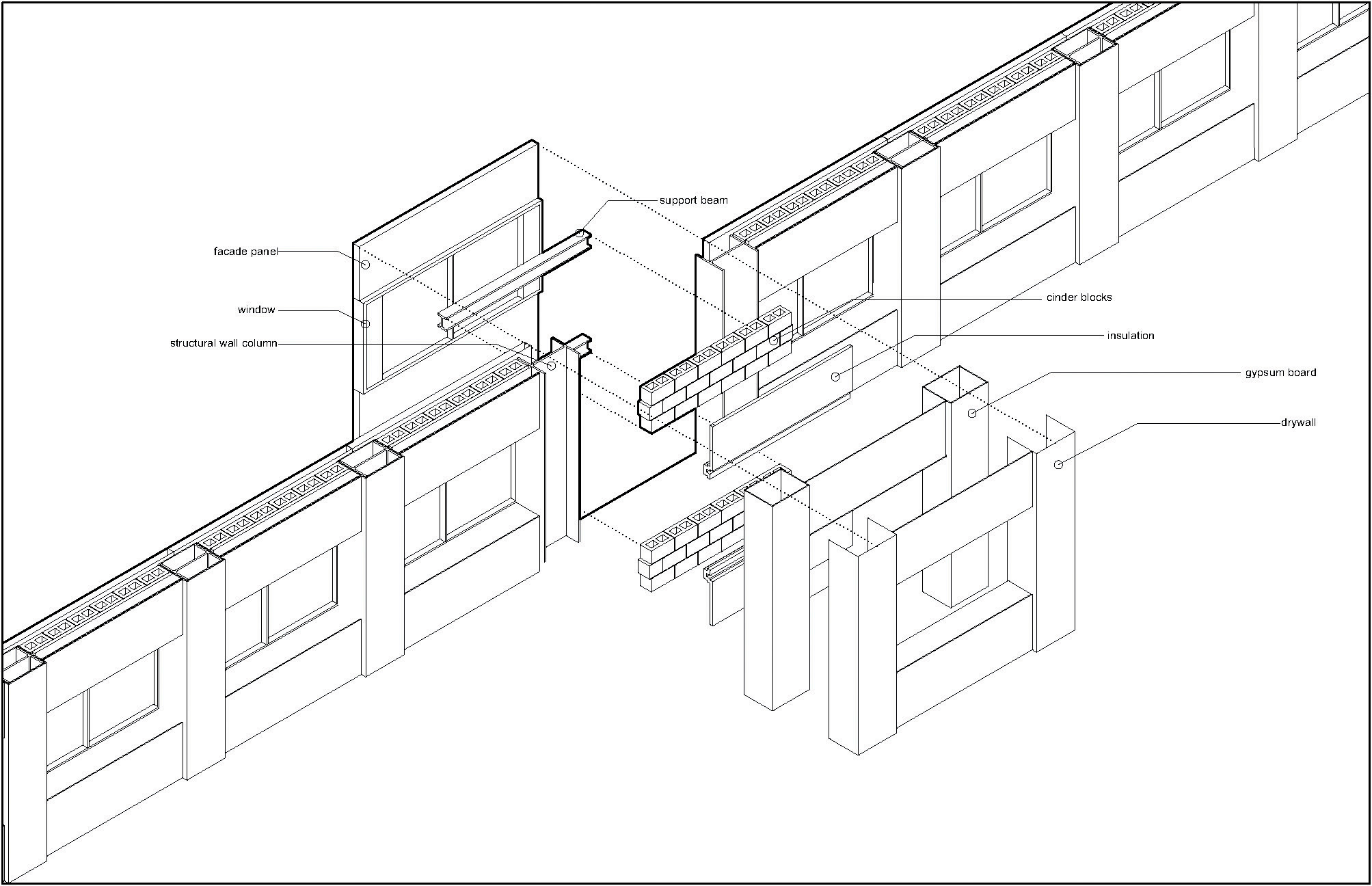
The two drawings above are a series of drawings showing the wall assembly of a tower floor and the process of disassembling it.
The drawing above is the paths of 50 occupiers entering the ground floor of the BMO Tower and converging on the central elevator shaft. This is intended to show what 50 people looks like simultaneously entering the building with intent to not leave.

Siege Tools: images of tools to be used for occupying and building within the tower.










